Restauro della parte pittorica della Chiesa Vecchia di Sacconago

(Come sempre, attingo a mani basse dal lavoro altrui, e, in particolare, dagli articoli dell’arch. Spada)
Secondo la ricostruzione di Augusto Spada, all'inizio del 1700 i Sinaghitti erano non oltre 900 in tutto, di cui non oltre 600 adulti. In quel momento si dedicarono alla costruzione di una nuova chiesa in sostituzione di quella medioevale. I lavori di restauro hanno portato alla luce le varie stratificazioni pittoriche. In particolare, sono state rese agli originali splendori i quattro evangelisti realizzati dai fratelli Turri nel 1884, cui si era affiancato un certo Giovanni di Bienate, che si firmò nel cartiglio di san Luca Evangelista.
In ogni caso oggi sono ben visibili sia le raffigurazioni degli evangelisti che il San Paolo con libro e spada e San Barnaba, nella controfacciata.


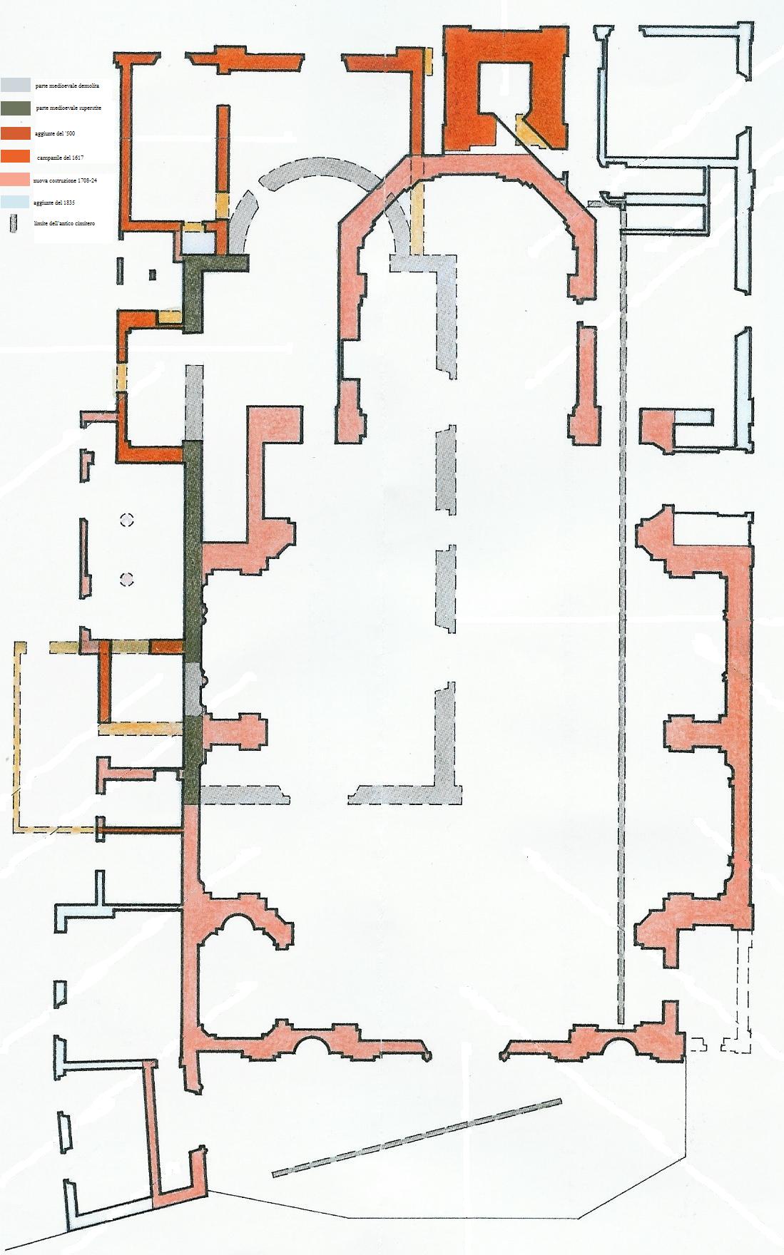
Mappa degli edifici che si sono sovrapposti dal medioevo ai giorni nostri e legenda
Disegno di base di Augsto Spada
Nel battistero vi è un battesimo di Gesù . Sono stati ristrutturati pregevoli pitture con la Natività, la Presentazione al Tempio, stimate del 1600.
I lavori di recupero della parte più antica dell'edificio hanno riguardato i residui spazi lasciati a seguito della parziale demolizione della chiesa medioevale (ampliata nel corso del 1500), demolizione allora resasi necessaria per realizzare la più ampia chiesa attualmente visibile. Sono stati demoliti la volta posticcia del '700 e numerosi muri e tramezze, sì da render accessibili i muri perimetrali della chiesta medioevale, sul lato nord, nonchè la volta dell'abside quadrata realizzata sempre nel corso del '500.
Quest'ultima, in particolare, era una struttura con volta ad ombrello tipica del rinascimento lombardo e, come si sospettava, era interamente affrescata. Il prezioso e paziente lavoro di restauro, eseguito sotto la direzione della Sovrintendenza, dal laboratorio San Gregorio, ha riportato alla luce un ciclo pittorico cinquecentesco mirabile ed inaspettato, di eccellente fattura.
Le operazioni di scavo hanno inoltre consentito di recuperare le fondamenta dell'antica abside semicircolare medioevale, la base dell'altare cinquecentesco, oggi visibili al di sotto di un pavimento trasparente.
Infine, gli scavi hanno riportato alla luce una serie di tombe fra cui una particolarmente pregevole che ha consentito il recupero ed il restauro di un abito cinquecentesco di pregevole fattura, oggi esposto all'interno dell'ala appena restaurata, sotto una apposita teca.
Tutta l'area da ultimo restaurata, che ha anche fatto emergere un affresco del '400 lungo la parete nord, è stata attrezzata con apposita cartellonistica che rende fruibili le opere al pubblico.
Siamo in presenza di un gioiello inaspettato di arte rinascimentale lombarda, con pochissimi altri esempi in tutta l'area nord ovest della regione.
Nella sezione fotografica di questo sito (1) si possono vedere alcune imamgini delle opere citate, tratte in parte dal calendario parrocchiale 2008.


Enrico Candiani

Primo articolo sui restauri
Indice Articoli su Sacconago